Home Nach oben

Hauptstudium     Grundstudium     Vita

   
 

 

 

 

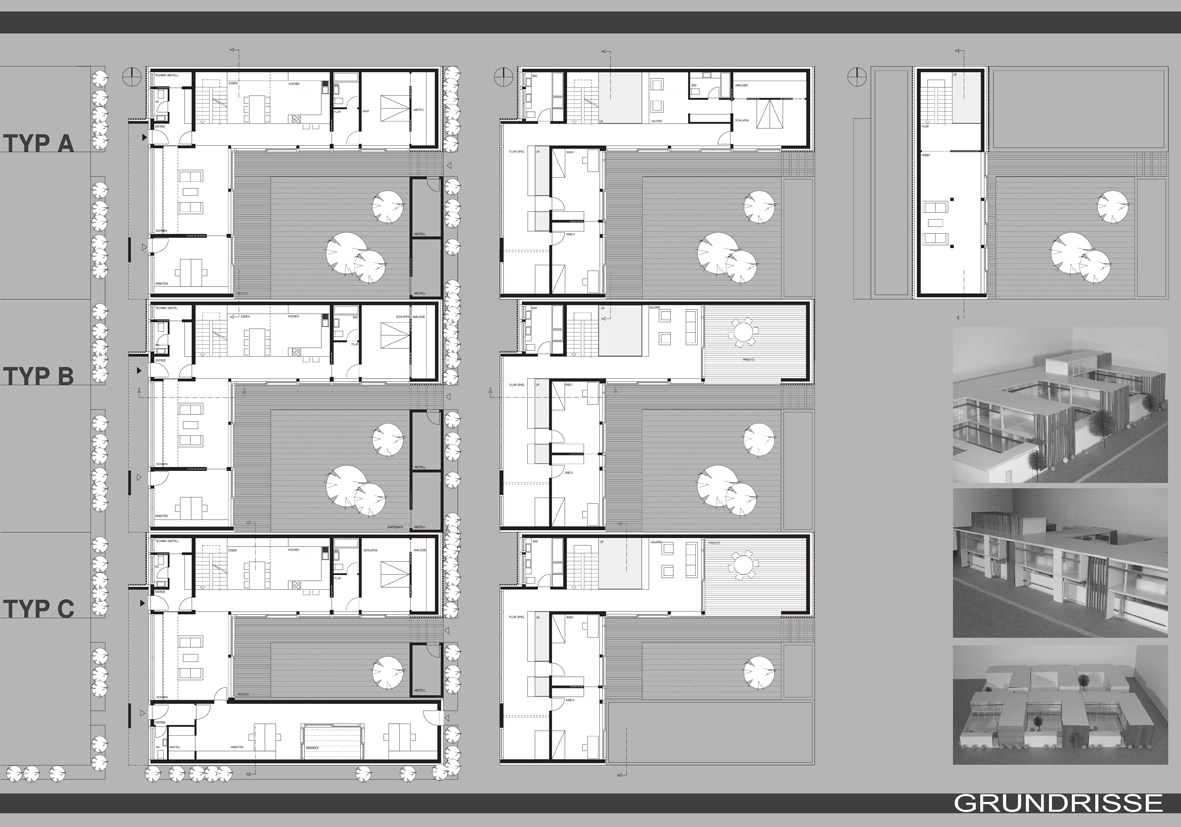
"90 GRAD"   Projekt II - Massivbau  I  2004/ 2005  I  Prof. Funke  I  Bewertung: 170

 

 

   

   

Entwurfsaufgabe bildete der verdichtete Wohnungsbau am Ortsrand von Darmstadt- Eberstadt. Hausgruppenkonzepte für gemeinschaftsorientiertes Familienwohnen sind gefordert. Ein Grund- Haustyp mit Variations- und Ausbaumöglichkeiten soll geschaffen werden.

Um dem verdichteten Wohnungsbau zu genügen, und dabei die Privatsphäre zu wahren, bilden Winkelhaustypen das Hausgruppenkonzept. Erschlossen werden die Gebäude über eine Hofanlage. Hier befinden sich Gemeinschaftsräume sowie Spiel- und Kommunikationsflächen. Schmale Durchwegungen öffnen sich zum Grüngürtel.

Das Winkelhaus wird im "Kernbereich" erschlossen. Hier befinden sich auch die Nasszellen und die vertikale Erschließung. Über dem Essbereich und Wohnraum befinden sich Lufträume, um Blickbezüge zu erzielen und um den Kernbereich mit Tageslicht zu durchfluten. Die Eltern erhalten im Erdgeschoss einen separaten Wohnbereich, so auch die Kinder im Obergeschoss. Des Weiteren befindet sich hier eine Dachterrasse, welche bei Bedarf auch zum beheizten Wohnraum erweitert werden kann. Alle Wohnräume erhalten großzügige Fensteröffnungen und orientieren sind zum Gartenhof. Im Kontrast dazu, und zur Betonung des introvertierten Gebäudes, steht die massiv gestaltete Eingangsfassade. Diese wird unterbrochen durch einen sich aus der Fassade schiebenden transparenten Quader, welcher somit einen überdachten Eingangsbereich schafft.

Der Grund- Haustyp lässt eine Erweiterung der Wohnfläche zu. Eine Möglichkeit der Erweiterung bildet ein eingeschossiger Riegel, welcher beispielsweise Fläche für ein kleines Büro bietet. Eine weitere Variante stellt ein Riegel dar, der auf dem Obergeschoss gelagert ist.